Wonderful property in the heart of the Umbrian countryside

€ 2.380.000
Passignano sul Trasimeno ,

Description

This property is located in a magical place where time seems to pass more slowly. A lush Mediterranean scrub is the backdrop to this magnificent resort with 14 rooms, a home for the owner and a recreational and convivial area. The large rooms and generous windows are the hallmark of this elegant structure. Everything is surrounded by 1.5 hectares of land with a swimming pool inside.

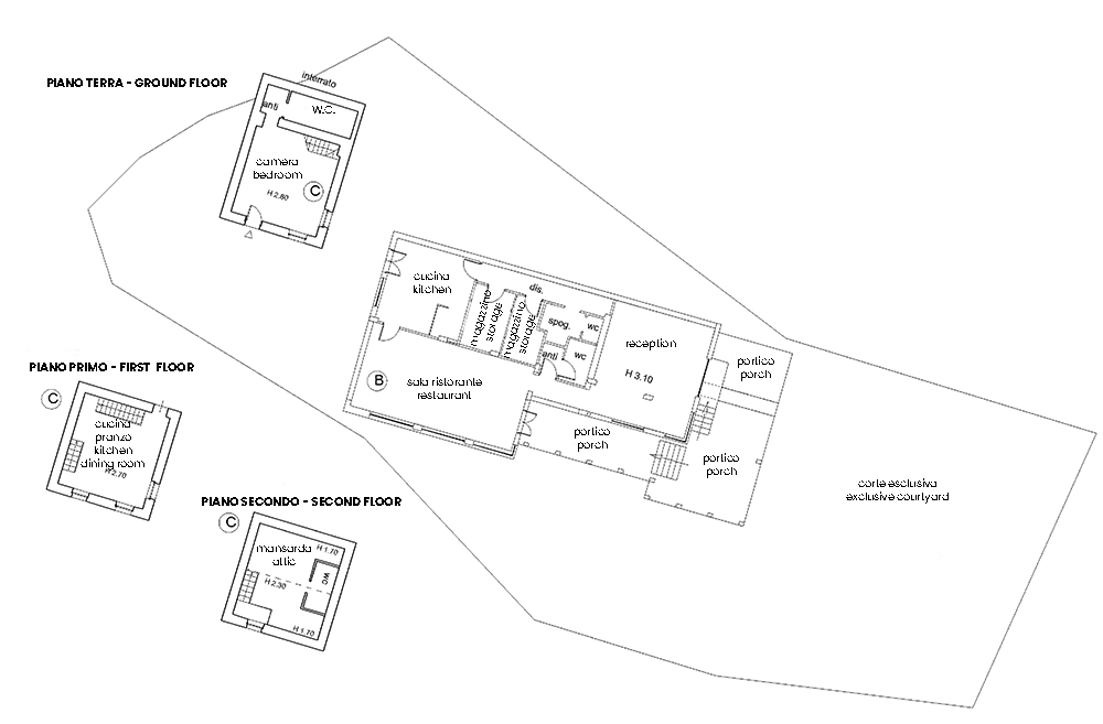
The property is made up of three buildings, each with its own function. The ancient manor house now has 14 suites, each with an independent entrance with direct access to the garden and a spectacular view of the forest. Then there is a second tower building on three floors, composed of a dining-living area and two bedrooms with ensuite bathroom, designed as a home for the owner. The third building is on one floor and here we find a first large room, perfect for conversation or yoga courses, a dining room, a professional kitchen, two rooms used as a pantry/warehouse, two bathrooms and a large porch for outdoor breakfasts and dinners. The garden surrounding the property measures approximately 1.5 hectares, has three entrances and inside there is a swimming pool measuring 17 x 5 meters in a secluded area. The furnishings, minimal and designer, are included in the price as are all the furnishing accessories.

State of repair

The property was completely renovated and expanded in 2007 and is the result of an accurate architectural study on the distribution of spaces and the use of natural light. The traditional elements typical of the farmhouse, such as wood and brick ceilings and insulation, have been expertly combined with modern elements such as the large windows and the internal finishes made of modern and essential materials. The windows are made of iron with thick glass for excellent thermal insulation, the roof is insulated and ventilated. The structure is in excellent condition. The renovation work was carried out to perfection with extreme attention to every detail.

Utilities

The property is connected to the electricity grid. The water supply is guaranteed by a well with abundant water and rainwater recovery tanks. Underfloor heating powered by an LPG gas boiler. Solar thermal system for the production of hot water.

Use and Potential Uses

A fantastic resort where guests can regenerate their mind and body in a place free from any disturbing element and enjoying almost complete

Address: Passignano sul Trasimeno
Area:
State/County:
Country: Italy
Open In Google Maps
Property Id : 26034
Price: € 2.380.000
Property Size: 851 m2
Bedrooms: 16
Bathrooms: 18
Property dimensions m² / sq: 14000
Outdoor Details
Outdoor lighting
Pool
Utilities
Electricity
Heating
LPG
water well
Building A
Building A
Building B and C
Building B and C
Swimming pool
Swimming pool

Reviews

You need to login in order to post a review

Similar Listings

Sales

Wonderful property in a panoramic location i...

10 Bedrooms · 10 Bathrooms · Size 1,300 m2
Price on request
Sales

Wonderful 17th-century farmhouse near San Ve...

11 Bedrooms · 10 Bathrooms · Size 934 m2
Price on request
  • Change Currency

  • Change Measurement

  • Advanced Search

    More Search Options

Compare Listings